Architekten Badenerstrasse 18 8004 Zürich
mail@trachselhiestand.ch
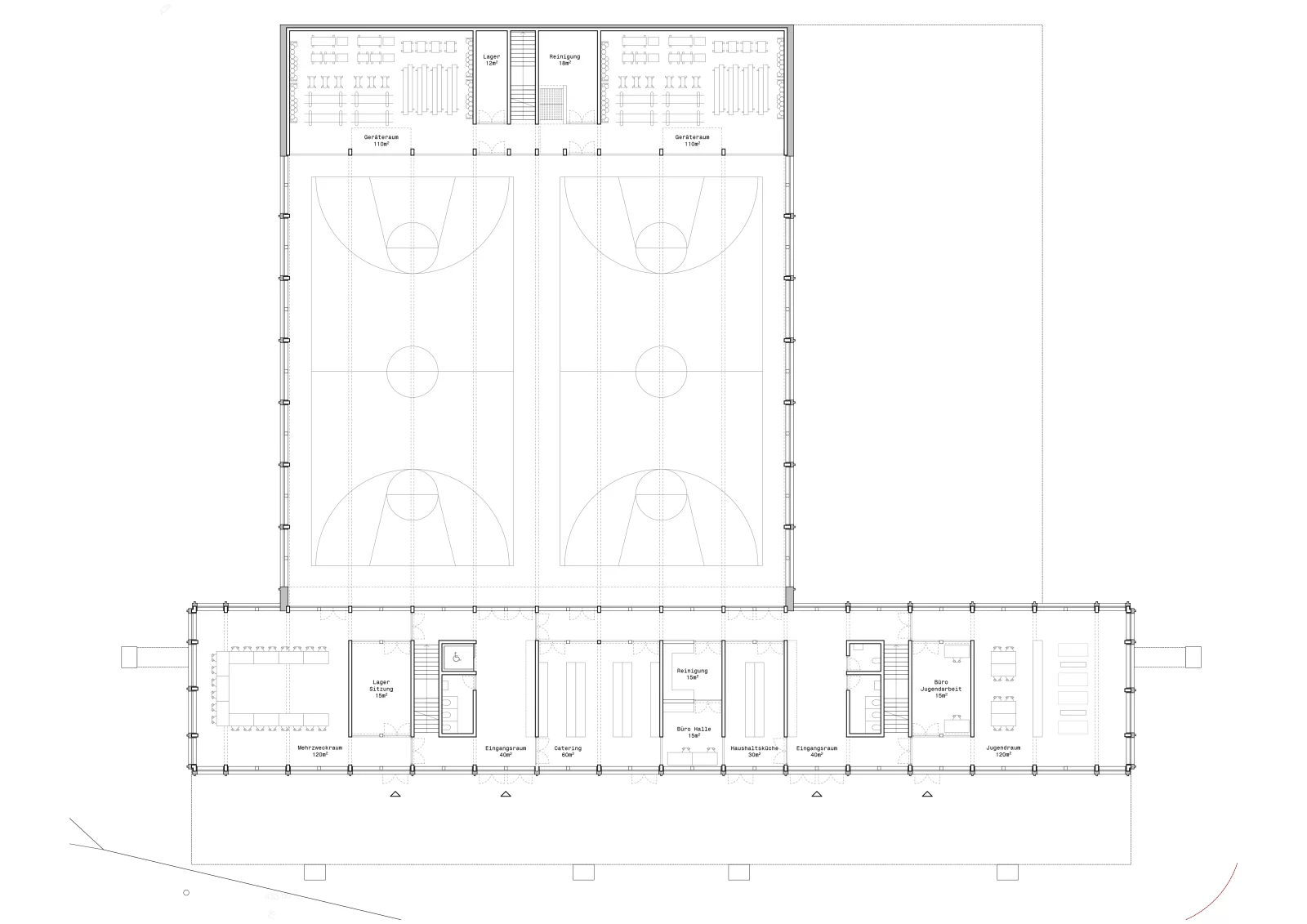
Neubau Turnhalle Oberlunkhofen, Wettbewerb 2023, 3. Rang